Selector de productos

Qué producto necesitás?

ROWA ofrece una guía rápida y sencilla para encontrar el producto que se adecue a sus necesidades.

Elegí tu equipo
Tango Press 20
Tango Press 20
Tango Press 20
Tango Press 20
Tango Press 20
Tango Press 20

Línea Press

Tango Press 20

Aumento de la presión de agua en viviendas en general con cisterna o tanque elevado. Bajo consumo, seguridad y confiabilidad. Hasta 2 plantas y 2 duchas


garantia2 años de garantía


Ventajas

  • No produce golpes de ariete.
  • Único con sistema “RPX”.
  • La bomba del equipo es ROWA y por ello es totalmente silenciosa.
  • No requiere ningún mantenimiento.
  • Bajo consumo.
  • Seguridad, confiabilidad.

Motor

  • Totalmente silencioso
  • Bobinado protegido contra funcionamiento en seco, se apaga automáticamente
  • Posee protector térmico incorporado

Construcción

  • Equipos compactos
  • Partes en contacto con el agua fabricadas con materiales sanitarios
  • Sistema rotor húmedo

Conexiones

  • Entrada y salida con rosca de 1”
  • 2 válvulas esféricas con uniones dobles (polipropileno)
  • Conexión eléctrica directa a la red

Características

  • Tensiones disponibles: 220V
  • Temperatura máxima del agua: 40°C
  • Temperatura ambiente: 40°C
  • Presión máxima del sistema: 4Kg/cm²
  • Tipo de aislación: F
  • Pérdida de carga máxima en succión: 4 m.c.a.

Sistema SRS

  • Este producto fue fabricado de acuerdo con el "Sistema de Reparación Simple" por kits de reposición ROWA (SRS).
  • El sistema SRS permite realizar cualquier reparación en menos de 15 minutos, en el mismo lugar donde se encuentra instalado el equipo.
  • Los kits de reposición SRS pueden ser adquiridos en los comercios autorizados por ROWA.

Detalles técnicos

Presión Máxima (m. c. a.) 19
Caudal Máximo (l/h) 4000
Potencia (HP) 0,50
Tensión V 220
I (A) 2,6
Conexión 1

Peso 9,20 kg / Tanque. 1 Litro / Dimensiones (mm)

A B C D E
365 316 200 272,5 145
F G H I
140 92,5 130 120
Esquema técnico

Posiciones de Instalación

  • El presurizador deberá ser instalado obligatoriamente de modo que el eje de la electrobomba permanezca en posición horizontal, de acuerdo a las siguientes figuras. El no cumplimiento de esta norma implicará el desgaste irregular del equipo y la consecuente pérdida de la garantía.
Posiciones de instalación

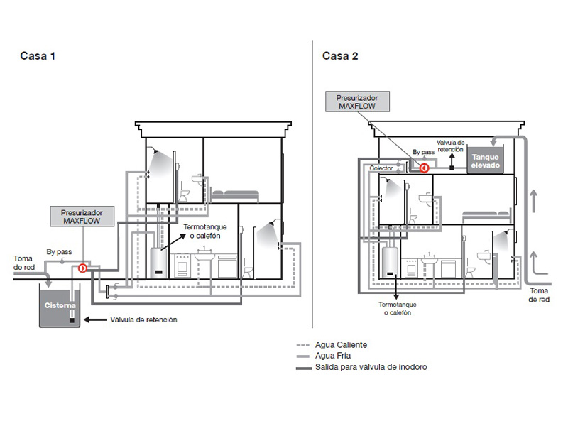
Esquema Tanque Elevado - Tanque Cisterna

Esquema de Instalación

Esquema de instalación

Esquema Tanque Elevado 1

Productos sugeridos

Facilitación de instalación

Facilitador de Instalación

Facilita la instalación de distintos tipos de electrobombas

Ver más »

Inteligent 20

Inteligent 20

Abastecimiento de agua para toda la vivienda - 1 a 3 plantas

Ver más »

Otros productos de la línea

Press 24

Tango Press 24

Aporta más confort en el baño y otros puntos de consumo de agua.

Max Press 26

Max Press 26

Aumento de presión de agua en viviendas. Hasta 3 plantas y 3 duchas.